97 Ridge RoadOssipee, NH 03814Sale Price: $62,500

  • Sale Price: $62,500
  • 43 Days Since Sale
$
$
%
$/month over payments
Federal 30-year interest rate: 6.24% last updated on Nov 13, 2025
* All Figures are estimates. Check with your bank or proposed mortgage company for actual interest rates.
This product uses the FRED® API but is not endorsed or certified by the Federal Reserve Bank of St. Louis.
  • $62,500Sale Price
  • 10/03/2025Sale Date
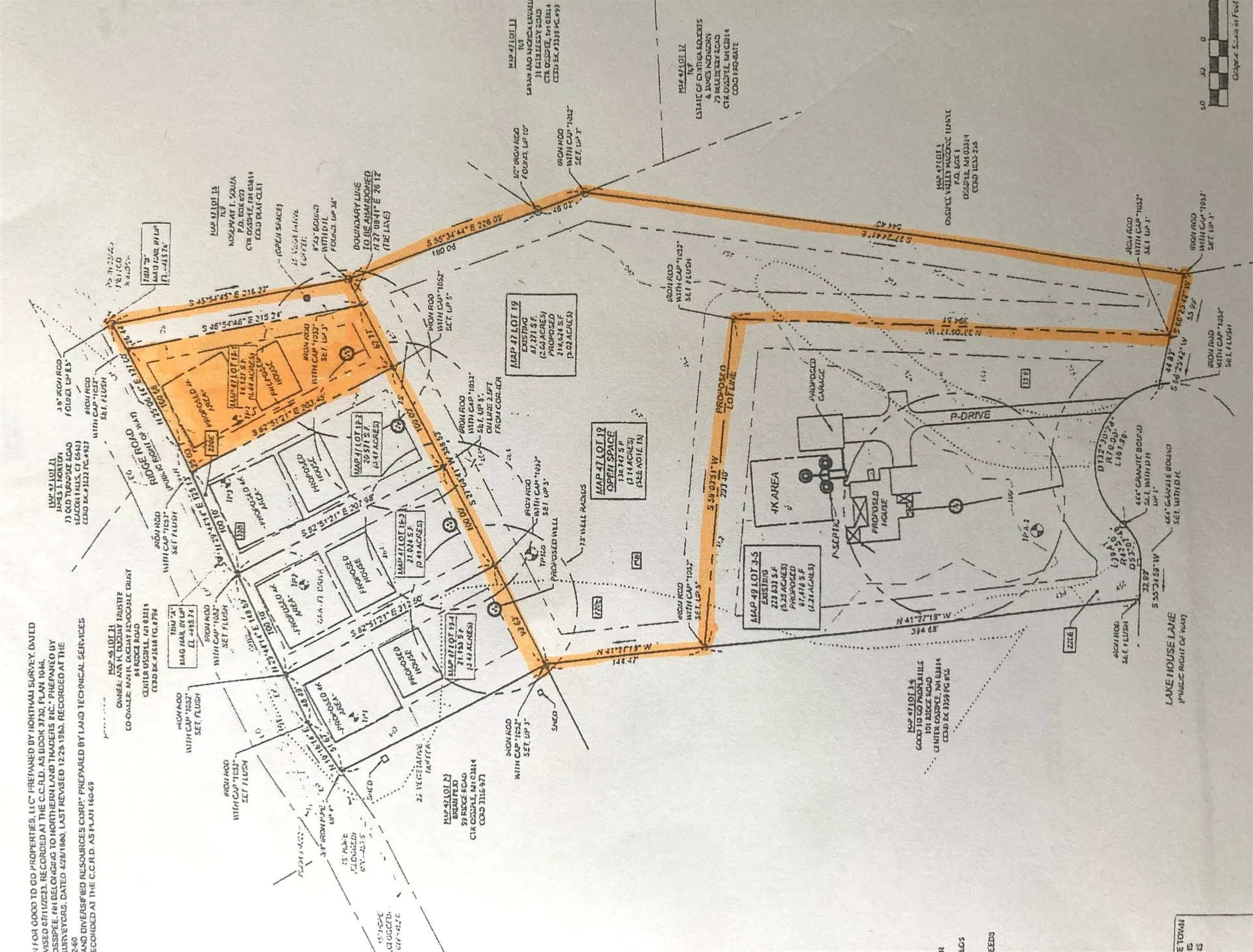
  • 19,166Square Feet
  • 0.44Acreage
Listed by Costantino Real Estate LLC (603-539-3200)

Listing Sold by Costantino Real Estate LLC

Listing Tools

Building lot close to two boat ramps to Ossipee Lake. The closest being 1/2 mile. These lots are wooded, flat and have sandy soils ready for you to start building. Lot comes with a shared 3+ acre parcel behind the subject property for recreational purposes (no motorized vehicles). Test pits have already been completed. Bring your builder or get in touch with the developer to discuss your home's vision. Come start enjoying all that Ossipee and surrounding towns have to offer, including; skiing, hiking, snowmobiling, golfing and more. This is 1 of 4 lots available to purchase in a newly subdivided property with a small association for the benefit of the common land.

Property Details of 97 Ridge Road

Property Details

Exterior Features

Community

Map Location

Broker Reciprocity 

Copyright 2025 PrimeMLS, Inc. All rights reserved. This information is deemed reliable, but not guaranteed. The data relating to real estate displayed on this display comes in part from the IDX Program of PrimeMLS. The information being provided is for consumers’ personal, non-commercial use and may not be used for any purpose other than to identify prospective properties consumers may be interested in purchasing. Data last updated November 15, 2025 9:22 AM EST

 

Hi there! How can we help you?

Contact us using the form below or give us a call.

Send Us A Message:

I agree to receive marketing and customer service calls and text messages from Waterfront Agent - Michael Travis. To opt out, you can reply 'stop' at any time or click the unsubscribe link in the emails. Consent is not a condition of purchase. Msg/data rates may apply. Msg frequency varies. Privacy Policy.

Do not fill in this field:

This site is protected by reCAPTCHA and the Google Privacy Policy and Terms of Service apply.

Hi there! How can we help you?

Contact us using the form below or give us a call.

Send Us A Message:

Do not fill in this field:

This site is protected by reCAPTCHA and the Google Privacy Policy and Terms of Service apply.

Hi there! How can we help you?

Contact us using the form below or give us a call.

Send Us A Message:

Do not fill in this field:

This site is protected by reCAPTCHA and the Google Privacy Policy and Terms of Service apply.

Do not fill in this field:

This site is protected by reCAPTCHA and the Google Privacy Policy and Terms of Service apply.

Do not fill in this field:

This site is protected by reCAPTCHA and the Google Privacy Policy and Terms of Service apply.

Do not fill in this field:

This site is protected by reCAPTCHA and the Google Privacy Policy and Terms of Service apply.

$

Do not fill in this field:

This site is protected by reCAPTCHA and the Google Privacy Policy and Terms of Service apply.